«Дом Групп» — строительство загородных домов
г. Санкт-Петербург, проспект Маршала Жукова 28 к2
+7 (812) 942 92 92
Главная Проекты домов Дома от 110 до 170 м2
Проект дома из СИП панелей «Винклер»
Проект дома из СИП панелей «Винклер»
Общая площадь - 139 м2
Количество этажей - 2
Размеры - 8,75м*12м
Количество комнат - 5
Количество санузлов - 2
от 1 920 000 руб.
Варианты внешней отделки “Проект дома из СИП панелей «Винклер»”
small
Отделка под камень
small
Отделка под кирпич
small
Отделка блок-хаусом
small
Отделка сайдингом
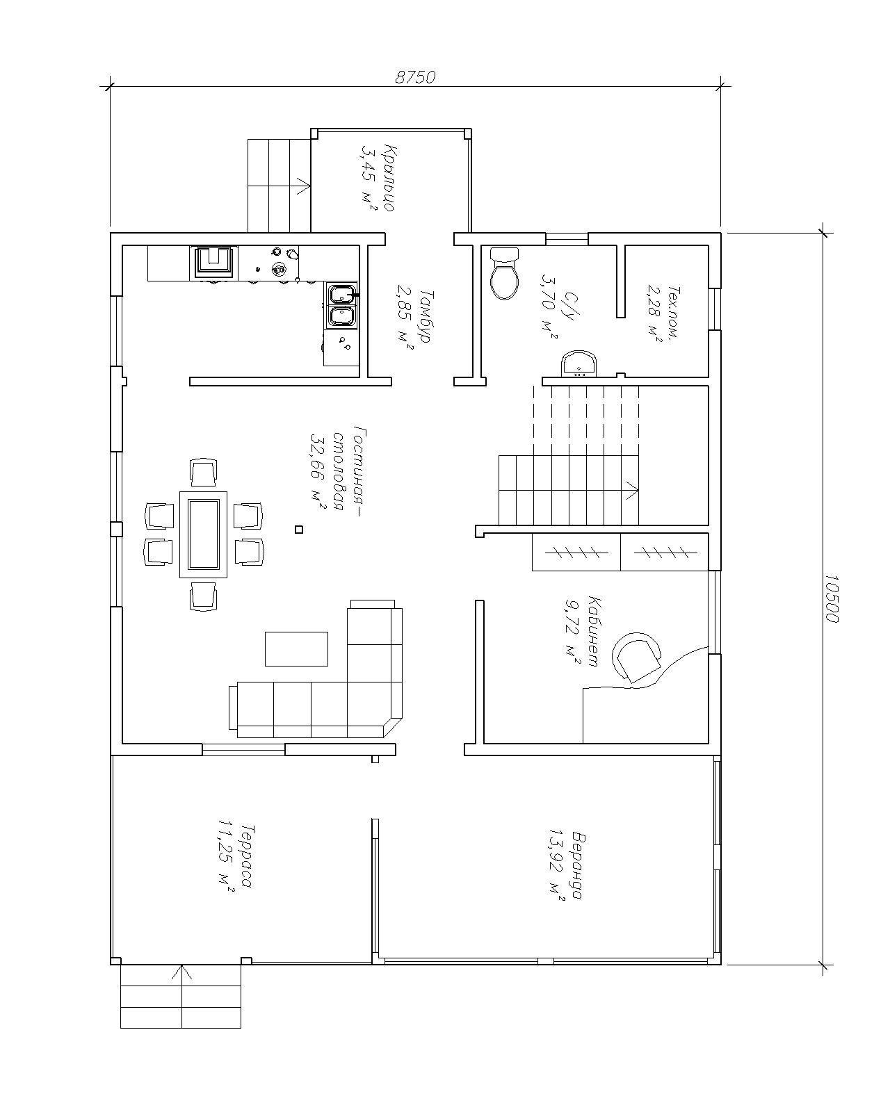
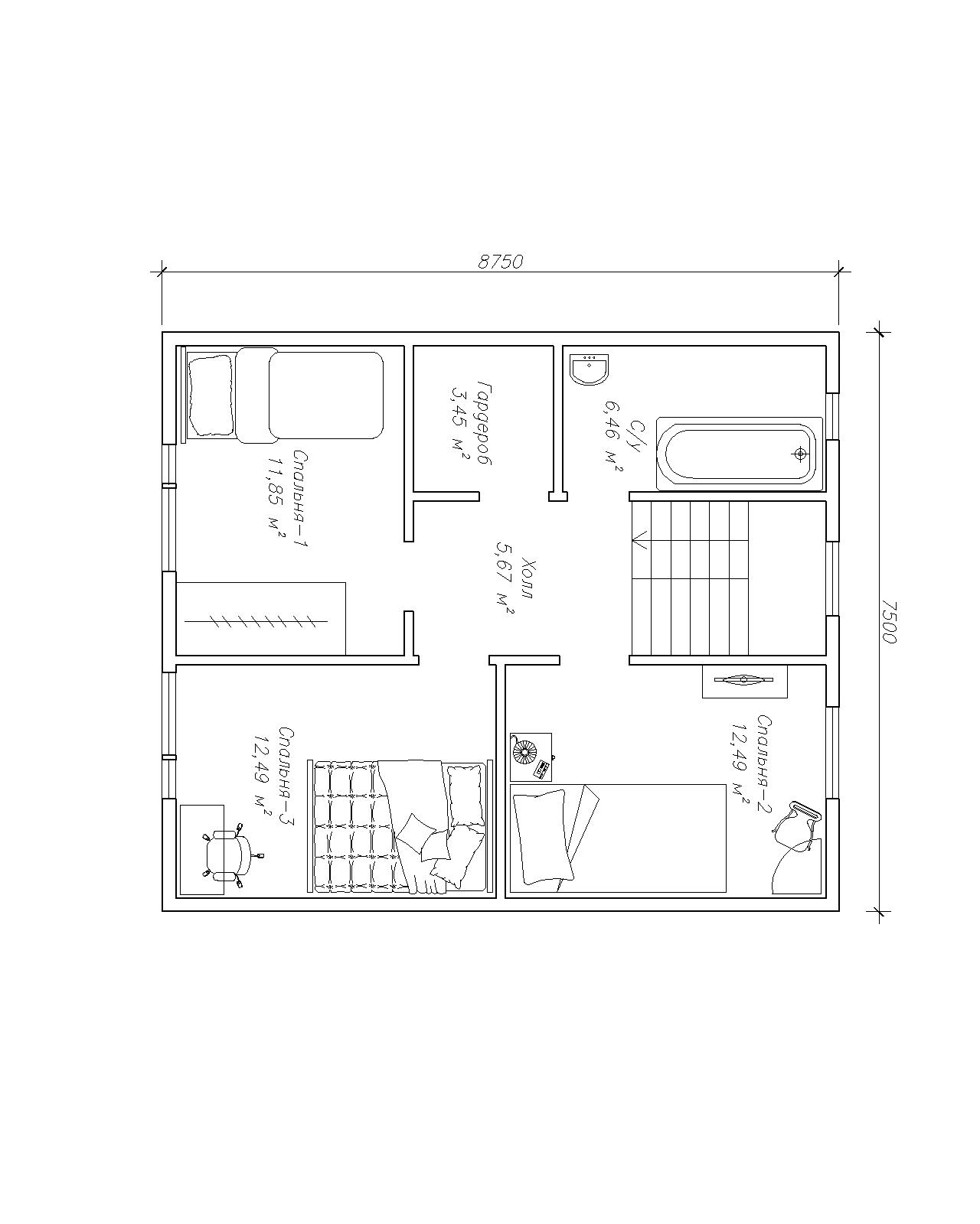
Планировка
Крыльцо 3,45 м2
Тамбур 2,85 м2
Гостиная-столовая 32,7 м2
Санузел 3,7 м2
Кабинет 9,7 м2
Кухня 6,5 м2
Тех. пом. 2,3 м2
Закрытая веранда 13,92 м2
Терраса 11,25 м2
Спальня 1 11,85 м2
Спальня 2 12,5 м2
Спальня 3 12,5 м2
Санузел 6,5 м2
Гардероб 3,5 м2
Холл 5,7 м2
Хотите внести пожелания
в планировку?
Оставьте заявку и мы
свяжемся с вами
Комплектация дома “Проект дома из СИП панелей «Винклер»”
Домокомплект
1 920 000 руб.
Фундамент
Фундамент: Забивные железобетонные сваи сечением 150х150, длина 3м. Монтаж, выравнивание свай в один горизонтальный уровень, крепление оголовков.
Комплект готового дома
Комплект готового дома: Обвязочный брус сечением 150х200. Деревянные элементы стен, перекрытий, кровли - сухой, калиброванный, антисептированный пиломатериал. СИП панели цокольного перекрытия 224 мм с усиленным верхним слоем ОСП 15мм. СИП панели ограждающих стен 174 мм. Внутренние перегородки - СИП панели 118мм. СИП панели чердачного перекрытия 174 мм. Крепеж. Монтажная пена. Ветрозащита стен. Рабочая документация для сборки дома.
Сборка домокомплекта
Сборка домокомплекта: Разгрузка домокомплекта на строительной площадке. Складирование материалов с покрытием для защиты от осадков. Монтаж дома на готовом фундаменте
Смонтированные кровля
Смонтированные кровля: Кровля битумная черепица двухслойная (гарантия производителя 30 лет). Монтаж обрешетки, гидроизоляционного и кровельного материала. Монтаж 2-х вентпроходок.
Установленные окна и двери
Установленные окна и двери: Окна ПВХ белые. Двухкамерный стеклопакет. С поворотно-откидным механизмом. Дверь металлическая, утепленная.
Заказать
Домокомплект + сборка
2 550 000 руб.
Фундамент
Фундамент: Забивные железобетонные сваи сечением 150х150, длина 3м. Монтаж, выравнивание свай в один горизонтальный уровень, крепление оголовков.
Комплект готового дома
Комплект готового дома: Обвязочный брус сечением 150х200. Деревянные элементы стен, перекрытий, кровли - сухой, калиброванный, антисептированный пиломатериал. СИП панели цокольного перекрытия 224 мм с усиленным верхним слоем ОСП 15мм. СИП панели ограждающих стен 174 мм. Внутренние перегородки - СИП панели 118мм. СИП панели чердачного перекрытия 174 мм. Крепеж. Монтажная пена. Ветрозащита стен. Рабочая документация для сборки дома.
Сборка домокомплекта
Сборка домокомплекта: Разгрузка домокомплекта на строительной площадке. Складирование материалов с покрытием для защиты от осадков. Монтаж дома на готовом фундаменте
Смонтированные кровля
Смонтированные кровля: Кровля битумная черепица двухслойная (гарантия производителя 30 лет). Монтаж обрешетки, гидроизоляционного и кровельного материала. Монтаж 2-х вентпроходок.
Установленные окна и двери
Установленные окна и двери: Окна ПВХ белые. Двухкамерный стеклопакет. С поворотно-откидным механизмом. Дверь металлическая, утепленная.
Заказать
Под отделку
3 320 000 руб.
Фундамент
Фундамент: Забивные железобетонные сваи сечением 150х150, длина 3м. Монтаж, выравнивание свай в один горизонтальный уровень, крепление оголовков.
Комплект готового дома
Комплект готового дома: Обвязочный брус сечением 150х200. Деревянные элементы стен, перекрытий, кровли - сухой, калиброванный, антисептированный пиломатериал. СИП панели цокольного перекрытия 224 мм с усиленным верхним слоем ОСП 15мм. СИП панели ограждающих стен 174 мм. Внутренние перегородки - СИП панели 118мм. СИП панели чердачного перекрытия 174 мм. Крепеж. Монтажная пена. Ветрозащита стен. Рабочая документация для сборки дома.
Сборка домокомплекта
Сборка домокомплекта: Разгрузка домокомплекта на строительной площадке. Складирование материалов с покрытием для защиты от осадков. Монтаж дома на готовом фундаменте
Смонтированные кровля
Смонтированные кровля: Кровля битумная черепица двухслойная (гарантия производителя 30 лет). Монтаж обрешетки, гидроизоляционного и кровельного материала. Монтаж 2-х вентпроходок.
Установленные окна и двери
Установленные окна и двери: Окна ПВХ белые. Двухкамерный стеклопакет. С поворотно-откидным механизмом. Дверь металлическая, утепленная.
Заказать
Самые популярные проекты
Проект дома из СИП панелей «Томстаун»
Общая площадь 131,2
Размеры 9,25 м*8,75 м
Количество комнат 5
1 827 000 руб.
Подробнее
Проект дома из СИП панелей «Бигвуд»
Общая площадь 162
Размеры 15,0 м*11,75 м
Количество комнат 4
1 940 000 руб.
Подробнее
Проект дома из СИП панелей «Ромфорд»
Общая площадь 221,3
Размеры 13,0 м* 10,7 м
Количество комнат 5
2 670 000 руб.
Подробнее
Все проекты
Остались вопросы?
Не нужно тратить свое время на изучение большого количества бесполезной информации, Узнайте все у специалиста!
Наш адрес:
г. Санкт-Петербург, проспект Маршала Жукова 28 к2 8 (812) 942 92 92 8 (921) 956 54 84 info@domgrupp.ru Перезвоните мне
Проекты Портфолио Кредит