«Дом Групп» — строительство загородных домов
г. Санкт-Петербург, проспект Маршала Жукова 28 к2
+7 (812) 942 92 92
Главная Проекты домов Дома до 110 м2
Проект дома из СИП панелей «Сарри»
Проект дома из СИП панелей «Сарри»
Общая площадь - 53 м2
Количество этажей - 1
Размеры - 10,0 м * 6,0 м
Количество комнат - 3
Количество санузлов - 1
от 1 200 000 руб.
Варианты внешней отделки “Проект дома из СИП панелей «Сарри»”
small
Отделка блок-хаусом
small
Отделка под камень
small
Отделка под кирпич
small
Отделка сайдингом
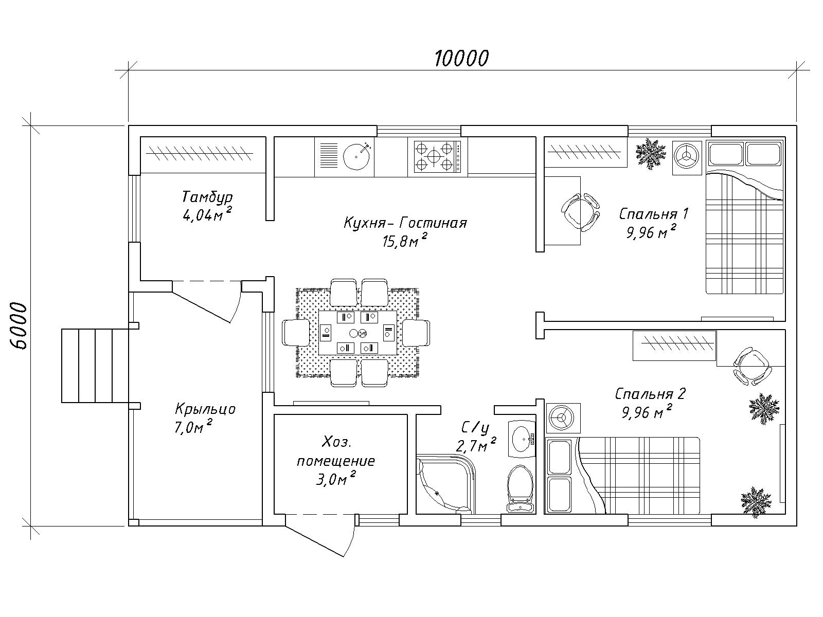
Планировка
Крыльцо 7,0 м2
Тамбур 4,04 м2
Кухня-гостиная 15,8 м2
Санузел 2,7 м2
Спальня1 9,96 м2
Спальня2 9,96 м2
Хозяйственное помещение 3,0 м2
Хотите внести пожелания
в планировку?
Оставьте заявку и мы
свяжемся с вами
Комплектация дома “Проект дома из СИП панелей «Сарри»”
Домокомплект
1 200 000 руб.
Фундамент
Фундамент: Забивные железобетонные сваи сечением 150х150, длина 3м. Монтаж, выравнивание свай в один горизонтальный уровень, крепление оголовков.
Комплект готового дома
Комплект готового дома: Обвязочный брус сечением 150х200. Деревянные элементы стен, перекрытий, кровли - сухой, калиброванный, антисептированный пиломатериал. СИП панели цокольного перекрытия 224 мм с усиленным верхним слоем ОСП 15мм. СИП панели ограждающих стен 174 мм. Внутренние перегородки - СИП панели 124мм. СИП панели чердачного перекрытия 174 мм. Крепеж. Монтажная пена. Ветрозащита стен. Рабочая документация для сборки дома.
Сборка домокомплекта
Сборка домокомплекта: Разгрузка домокомплекта на строительной площадке. Складирование материалов с укрытием для защиты от осадков. Монтаж дома на готовом фундаменте.
Смонтированные кровля
Смонтированные кровля: Монтаж обрешетки, контробрешетки, ветровлагозащиты с установкой металлочерепицы Монтеррей 0,45мм. Монтаж 3-х вентпроходок.
Установленные окна и двери
Установленные окна и двери: Окна ПВХ белые. Двухкамерный стеклопакет. С поворотно-откидным механизмом. Дверь металлическая, утепленная.
Заказать
Домокомплект + сборка
1 650 000 руб.
Фундамент
Фундамент: Забивные железобетонные сваи сечением 150х150, длина 3м. Монтаж, выравнивание свай в один горизонтальный уровень, крепление оголовков.
Комплект готового дома
Комплект готового дома: Обвязочный брус сечением 150х200. Деревянные элементы стен, перекрытий, кровли - сухой, калиброванный, антисептированный пиломатериал. СИП панели цокольного перекрытия 224 мм с усиленным верхним слоем ОСП 15мм. СИП панели ограждающих стен 174 мм. Внутренние перегородки - СИП панели 124мм. СИП панели чердачного перекрытия 174 мм. Крепеж. Монтажная пена. Ветрозащита стен. Рабочая документация для сборки дома.
Сборка домокомплекта
Сборка домокомплекта: Разгрузка домокомплекта на строительной площадке. Складирование материалов с укрытием для защиты от осадков. Монтаж дома на готовом фундаменте.
Смонтированные кровля
Смонтированные кровля: Монтаж обрешетки, контробрешетки, ветровлагозащиты с установкой металлочерепицы Монтеррей 0,45мм. Монтаж 3-х вентпроходок.
Установленные окна и двери
Установленные окна и двери: Окна ПВХ белые. Двухкамерный стеклопакет. С поворотно-откидным механизмом. Дверь металлическая, утепленная.
Заказать
Под отделку
2 250 000 руб.
Фундамент
Фундамент: Забивные железобетонные сваи сечением 150х150, длина 3м. Монтаж, выравнивание свай в один горизонтальный уровень, крепление оголовков.
Комплект готового дома
Комплект готового дома: Обвязочный брус сечением 150х200. Деревянные элементы стен, перекрытий, кровли - сухой, калиброванный, антисептированный пиломатериал. СИП панели цокольного перекрытия 224 мм с усиленным верхним слоем ОСП 15мм. СИП панели ограждающих стен 174 мм. Внутренние перегородки - СИП панели 124мм. СИП панели чердачного перекрытия 174 мм. Крепеж. Монтажная пена. Ветрозащита стен. Рабочая документация для сборки дома.
Сборка домокомплекта
Сборка домокомплекта: Разгрузка домокомплекта на строительной площадке. Складирование материалов с укрытием для защиты от осадков. Монтаж дома на готовом фундаменте.
Смонтированные кровля
Смонтированные кровля: Монтаж обрешетки, контробрешетки, ветровлагозащиты с установкой металлочерепицы Монтеррей 0,45мм. Монтаж 3-х вентпроходок.
Установленные окна и двери
Установленные окна и двери: Окна ПВХ белые. Двухкамерный стеклопакет. С поворотно-откидным механизмом. Дверь металлическая, утепленная.
Заказать
Самые популярные проекты
Проект дома из СИП панелей «Томстаун»
Общая площадь 131,2
Размеры 9,25 м*8,75 м
Количество комнат 5
2 010 000 руб.
Подробнее
Проект дома из СИП панелей «Бигвуд»
Общая площадь 162
Размеры 15,0 м*11,75 м
Количество комнат 4
2 135 000 руб.
Подробнее
Проект дома из СИП панелей «Хагар»
Общая площадь 163,63
Размеры 10,0 м* 9,8 м
Количество комнат 4
1 630 000 руб.
Подробнее
Все проекты
Остались вопросы?
Не нужно тратить свое время на изучение большого количества бесполезной информации, Узнайте все у специалиста!
Наш адрес:
г. Санкт-Петербург, проспект Маршала Жукова 28 к2 8 (812) 942 92 92 8 (921) 956 54 84 info@domgrupp.ru Перезвоните мне
Проекты Портфолио Кредит