«Дом Групп» — строительство загородных домов
г. Санкт-Петербург, проспект Маршала Жукова 28 к2
+7 (812) 942 92 92
Главная Проекты домов Дома от 110 до 170 м2
Проект дома из СИП панелей «Гамильтон»
Проект дома из СИП панелей «Гамильтон»
Общая площадь - 143 м2
Количество этажей - 2
Размеры - 8,75 м * 12,5 м
Количество комнат - 4
Количество санузлов - 1
от 2 530 000 руб.
Варианты внешней отделки “Проект дома из СИП панелей «Гамильтон»”
small
Отделка сайдингом
small
Отделка под камень
small
Отделка блок-хаусом
small
Отделка под кирпич
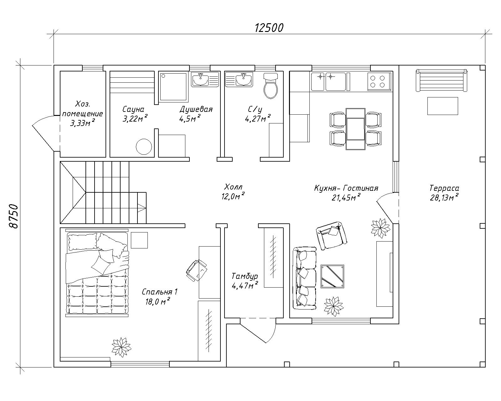
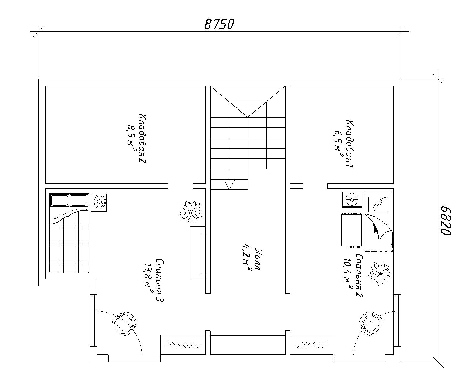
Планировка
Терраса 28,13 м2
Тамбур 4,47 м2
Кухня-гостиная 21,45 м2
Санузел 4,27 м2
Душевая 4,5 м2
Сауна 3,22 м2
Спальня 1 18,0 м2
Холл 12,0 м2
Хозяйственное помещение 3,33 м2
Спальня 2 10,4 м2
Спальня 3 13,8 м2
Холл 4,2 м2
Кладовая 1 6,5 м2
Кладовая 2 8,5 м2
Хотите внести пожелания
в планировку?
Оставьте заявку и мы
свяжемся с вами
Комплектация дома “Проект дома из СИП панелей «Гамильтон»”
Домокомплект
2 530 000 руб.
Фундамент
Фундамент: Забивные железобетонные сваи сечением 150х150, длина 3м. Монтаж, выравнивание свай в один горизонтальный уровень, крепление оголовков.
Комплект готового дома
Комплект готового дома: Обвязочный брус сечением 150х200. Деревянные элементы стен, перекрытий, кровли - сухой, калиброванный, антисептированный пиломатериал. СИП панели цокольного перекрытия 224 мм с усиленным верхним слоем ОСП 15мм. СИП панели ограждающих стен 174 мм. Внутренние перегородки - СИП панели 124мм. СИП панели чердачного перекрытия 174 мм. Крепеж. Монтажная пена. Ветрозащита стен. Рабочая документация для сборки дома.
Сборка домокомплекта
Сборка домокомплекта: Разгрузка домокомплекта на строительной площадке. Складирование материалов с укрытием для защиты от осадков. Монтаж дома на готовом фундаменте.
Смонтированные кровля
Смонтированные кровля: Монтаж обрешетки, контробрешетки, ветровлагозащиты с установкой металлочерепицы Монтеррей 0,45мм. Монтаж 3-х вентпроходок.
Установленные окна и двери
Установленные окна и двери: Окна ПВХ белые. Двухкамерный стеклопакет. С поворотно-откидным механизмом. Дверь металлическая, утепленная.
Заказать
Домокомплект + сборка
3 300 000 руб.
Фундамент
Фундамент: Забивные железобетонные сваи сечением 150х150, длина 3м. Монтаж, выравнивание свай в один горизонтальный уровень, крепление оголовков.
Комплект готового дома
Комплект готового дома: Обвязочный брус сечением 150х200. Деревянные элементы стен, перекрытий, кровли - сухой, калиброванный, антисептированный пиломатериал. СИП панели цокольного перекрытия 224 мм с усиленным верхним слоем ОСП 15мм. СИП панели ограждающих стен 174 мм. Внутренние перегородки - СИП панели 124мм. СИП панели чердачного перекрытия 174 мм. Крепеж. Монтажная пена. Ветрозащита стен. Рабочая документация для сборки дома.
Сборка домокомплекта
Сборка домокомплекта: Разгрузка домокомплекта на строительной площадке. Складирование материалов с укрытием для защиты от осадков. Монтаж дома на готовом фундаменте.
Смонтированные кровля
Смонтированные кровля: Монтаж обрешетки, контробрешетки, ветровлагозащиты с установкой металлочерепицы Монтеррей 0,45мм. Монтаж 3-х вентпроходок.
Установленные окна и двери
Установленные окна и двери: Окна ПВХ белые. Двухкамерный стеклопакет. С поворотно-откидным механизмом. Дверь металлическая, утепленная.
Заказать
Под отделку
4 300 000 руб.
Фундамент
Фундамент: Забивные железобетонные сваи сечением 150х150, длина 3м. Монтаж, выравнивание свай в один горизонтальный уровень, крепление оголовков.
Комплект готового дома
Комплект готового дома: Обвязочный брус сечением 150х200. Деревянные элементы стен, перекрытий, кровли - сухой, калиброванный, антисептированный пиломатериал. СИП панели цокольного перекрытия 224 мм с усиленным верхним слоем ОСП 15мм. СИП панели ограждающих стен 174 мм. Внутренние перегородки - СИП панели 124мм. СИП панели чердачного перекрытия 174 мм. Крепеж. Монтажная пена. Ветрозащита стен. Рабочая документация для сборки дома.
Сборка домокомплекта
Сборка домокомплекта: Разгрузка домокомплекта на строительной площадке. Складирование материалов с укрытием для защиты от осадков. Монтаж дома на готовом фундаменте.
Смонтированные кровля
Смонтированные кровля: Монтаж обрешетки, контробрешетки, ветровлагозащиты с установкой металлочерепицы Монтеррей 0,45мм. Монтаж 3-х вентпроходок.
Установленные окна и двери
Установленные окна и двери: Окна ПВХ белые. Двухкамерный стеклопакет. С поворотно-откидным механизмом. Дверь металлическая, утепленная.
Заказать
Самые популярные проекты
Проект дома из СИП панелей «Томстаун»
Общая площадь 131,2
Размеры 9,25 м*8,75 м
Количество комнат 5
2 010 000 руб.
Подробнее
Проект дома из СИП панелей «Бигвуд»
Общая площадь 162
Размеры 15,0 м*11,75 м
Количество комнат 4
2 135 000 руб.
Подробнее
Проект дома из СИП панелей «Ромфорд»
Общая площадь 221,3
Размеры 13,0 м* 10,7 м
Количество комнат 5
2 940 000 руб.
Подробнее
Все проекты
Остались вопросы?
Не нужно тратить свое время на изучение большого количества бесполезной информации, Узнайте все у специалиста!
Наш адрес:
г. Санкт-Петербург, проспект Маршала Жукова 28 к2 8 (812) 942 92 92 8 (921) 956 54 84 info@domgrupp.ru Перезвоните мне
Проекты Портфолио Кредит