«Дом Групп» — строительство загородных домов
г. Санкт-Петербург, проспект Маршала Жукова 28 к2
+7 (812) 942 92 92
Главная Портфолио
Дом по индивидуальному проекту Рамцы

Дом по индивидуальному проекту Рамцы

Дом по индивидуальному проекту Рамцы
Дом по индивидуальному проекту Рамцы
Дом по индивидуальному проекту Рамцы

Дом по индивидуальному проекту Рамцы

Место строительства

ЛО.  поселок «Рамцы»

Год строительства

2024г.

Общая площадь

124 м2

Количество этажей 

2

Размеры

10,00м*9,25м

Количество комнат

5

Количество санузлов

2

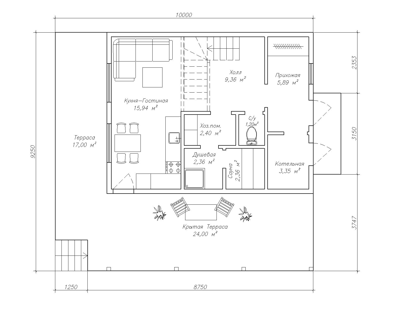
Планировка дома

Планировка дома 1 этаж
1 этаж

Терраса

41,00 м2

Прихожая

5,89 м2

Санузел1

1,2 м2

Кухня-столовая

15,94 м2

Душевая

2,36 м2

Сауна

2,36 м2

Холл

9,36 м2

Котельная

3,35 м2

Хоз. помещение

2,40 м2

2 этаж

Холл

4,44 м2

Спальня 1

7,81 м2

Спальня 2

10,24 м2

Спальня 3

15,94 м2

Санузел2

1,68 м2

Отзыв владельца дома

Карта построенных домов
Проекты Портфолио Кредит