«Дом Групп» — строительство загородных домов
г. Санкт-Петербург, проспект Маршала Жукова 28 к2
+7 (812) 942 92 92
Главная Портфолио
Дом по индивидуальному проекту Никольское 3

Дом по индивидуальному проекту Никольское 3

Дом по индивидуальному проекту Никольское 3
Дом по индивидуальному проекту Никольское 3
Дом по индивидуальному проекту Никольское 3
Дом по индивидуальному проекту Никольское 3
Дом по индивидуальному проекту Никольское 3

 

Дом по индивидуальному проекту Никольское 3

Место строительства

ЛО. ДНП «Никольское»

Год строительства 

2024г.

Общая площадь 

200 м2

Количество этажей  

2

Размеры 

13,0м*11,5м

Количество комнат 

6

Количество санузлов 

4

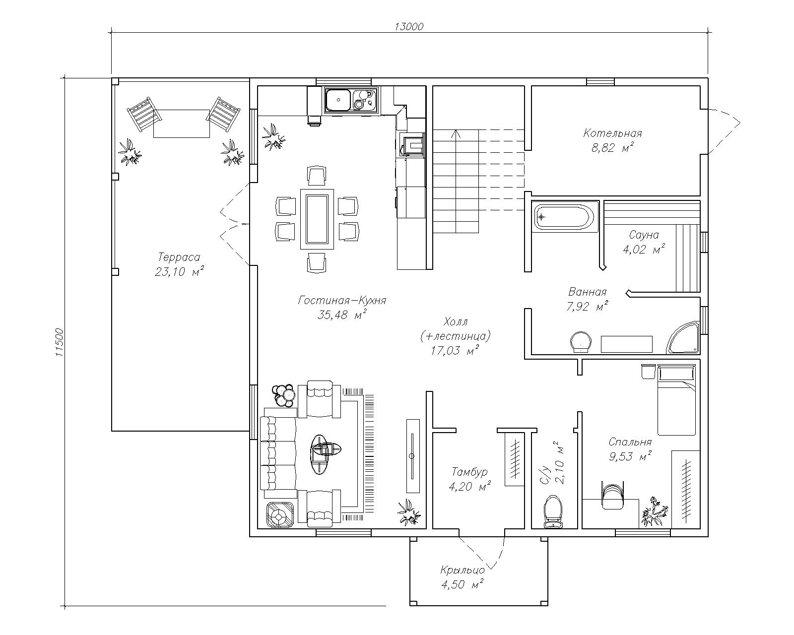
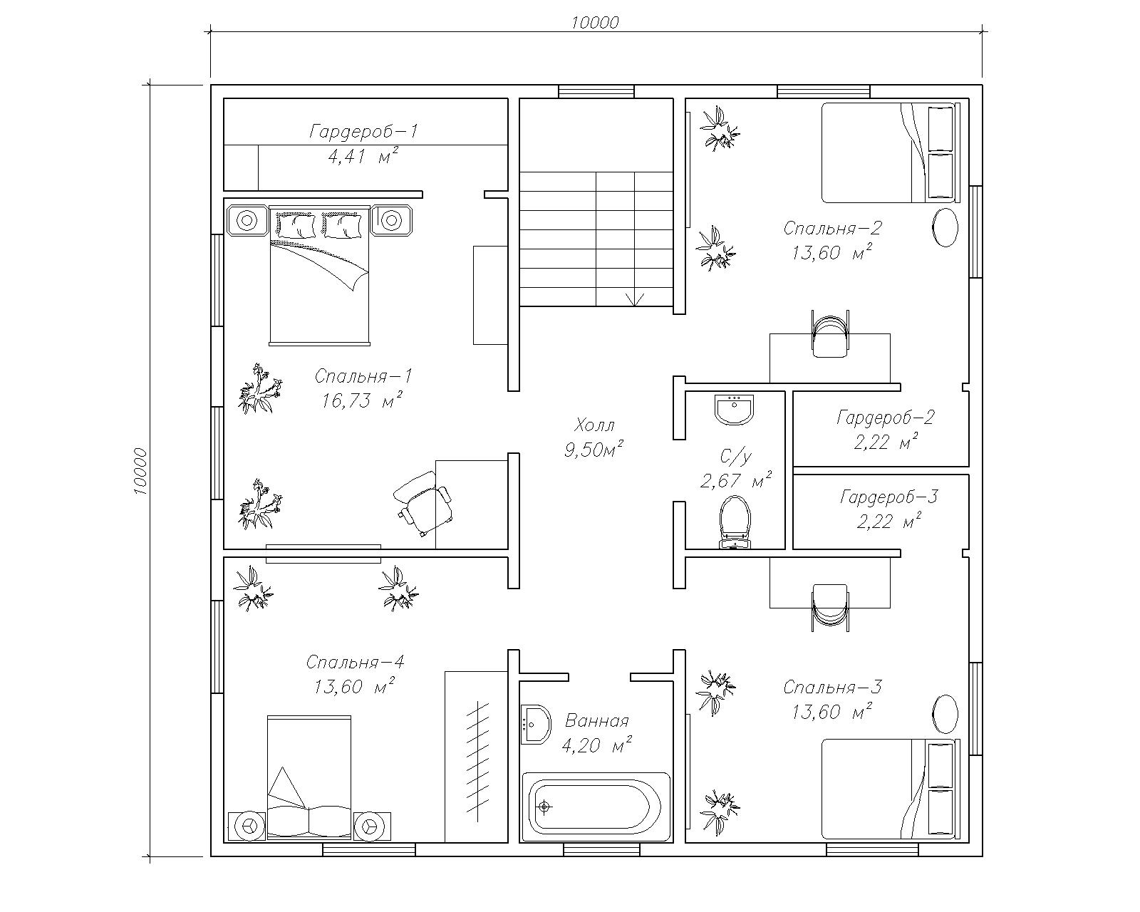
Планировка дома

Планировка дома 1 этаж
1 этаж

Крыльцо

4,5 м2

Терраса

23,10 м2

Тамбур

4,2 м2

Котельная

8,82 м2

Ванная 1

7,92м2

Сауна

4,02м2

Санузел1

2,1 м2

Спальня 1

9,53м2

Кухня- Гостиная

35,48 м2

Холл

17,03 м2

2 этаж

Холл

9,5 м2

Спальня 2

16,73м2

Спальня 3

13,6м2

Спальня 4

13,6м2

Спальня 5

13,6м2

Санузел 2

2,67 м2

Ванная 2

4,2 м2

Гардероб 1

2,22 м2

Гардероб 2

2,22 м2

Отзыв владельца дома

Карта построенных домов
Проекты Портфолио Кредит