«Дом Групп» — строительство загородных домов
г. Санкт-Петербург, проспект Маршала Жукова 28 к2
+7 (812) 942 92 92
Главная Портфолио
Дом по индивидуальному проекту Мельница Парк

Дом по индивидуальному проекту Мельница Парк

Дом по индивидуальному проекту Мельница Парк
Дом по индивидуальному проекту Мельница Парк
Дом по индивидуальному проекту Мельница Парк
Дом по индивидуальному проекту Мельница Парк

Дом по индивидуальному проекту Мельница Парк

Место строительства

ЛО.  КП «Мельница Парк»

Год строительства

2024г.

Общая площадь

160 м2

Количество этажей 

1

Размеры

15,25м*11,5м

Количество комнат

7

Количество санузлов

2

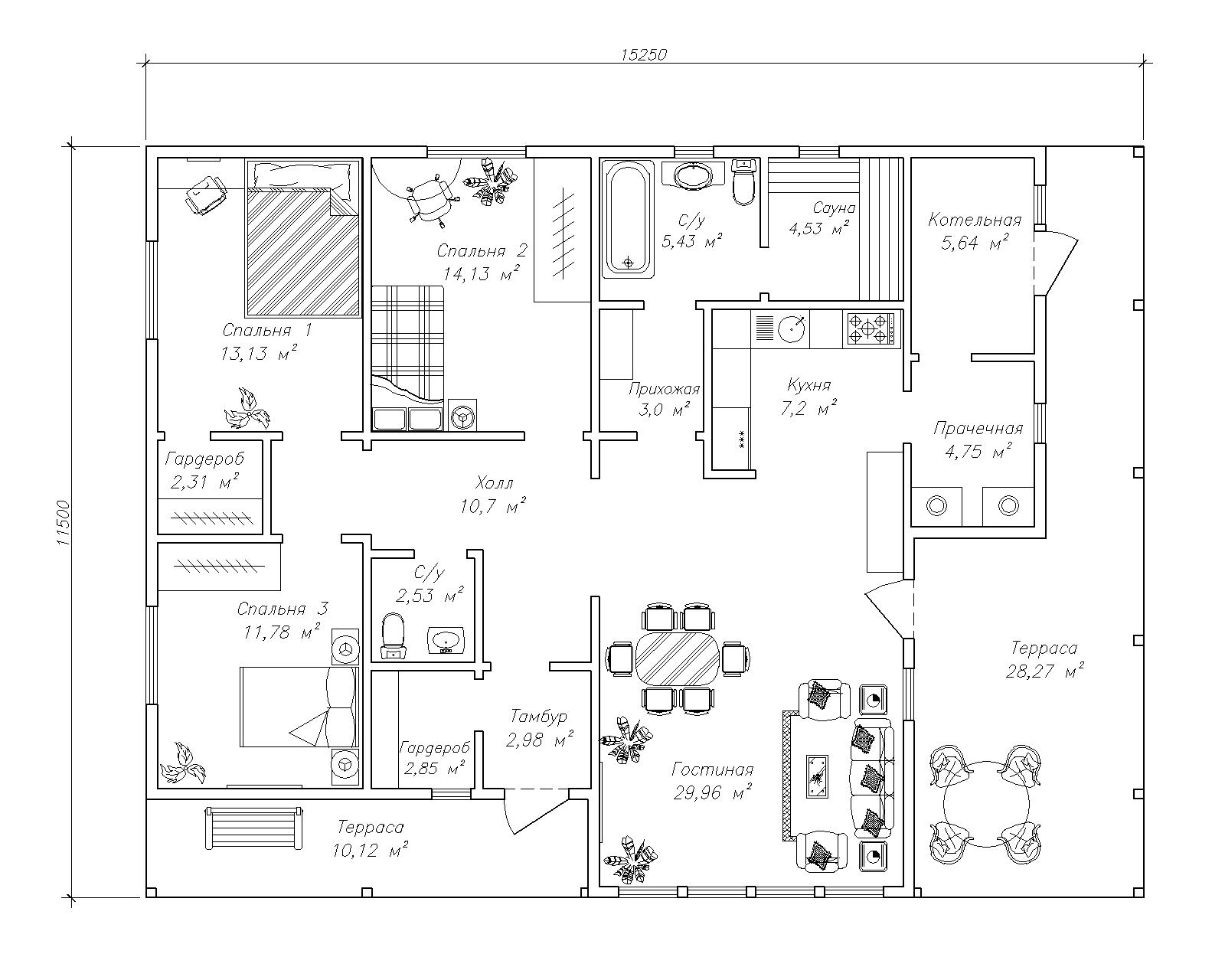
Планировка дома

Планировка дома 1 этаж
1 этаж

Терраса 1

28,27м2

Терраса 2

10,12м2

Тамбур

2,98м2

Кухня

7,2 м2

Гостиная

29,96 м2

Санузел1

2,53 м2

Санузел2

5,43 м2

Прихожая

3,0 м2

Сауна

4,53 м2

Холл

10,7 м2

Гардероб1

2,85 м2

Гардероб2

2,31 м2

Спальня1

13,13 м2

Спальня2

14,13 м2

Спальня3

11,78 м2

Прачечная

4,75 м2

Котельная

6,64 м2

Отзыв владельца дома

Карта построенных домов
Проекты Портфолио Кредит