«Дом Групп» — строительство загородных домов
г. Санкт-Петербург, проспект Маршала Жукова 28 к2
+7 (812) 942 92 92
Главная Портфолио
Дом по индивидуальному проекту Добручинская волость

Дом по индивидуальному проекту Добручинская волость

Дом по индивидуальному проекту Добручинская волость
Дом по индивидуальному проекту Добручинская волость
Дом по индивидуальному проекту Добручинская волость
Дом по индивидуальному проекту Добручинская волость
Дом по индивидуальному проекту Добручинская волость

 

Место строительства

Псковская область. д. «Мельговщина»

Год строительства 

2025г.

Общая площадь 

80 м2

Количество этажей  

1

Размеры 

11,375м*7,5м

Количество комнат 

3

Количество санузлов 

1

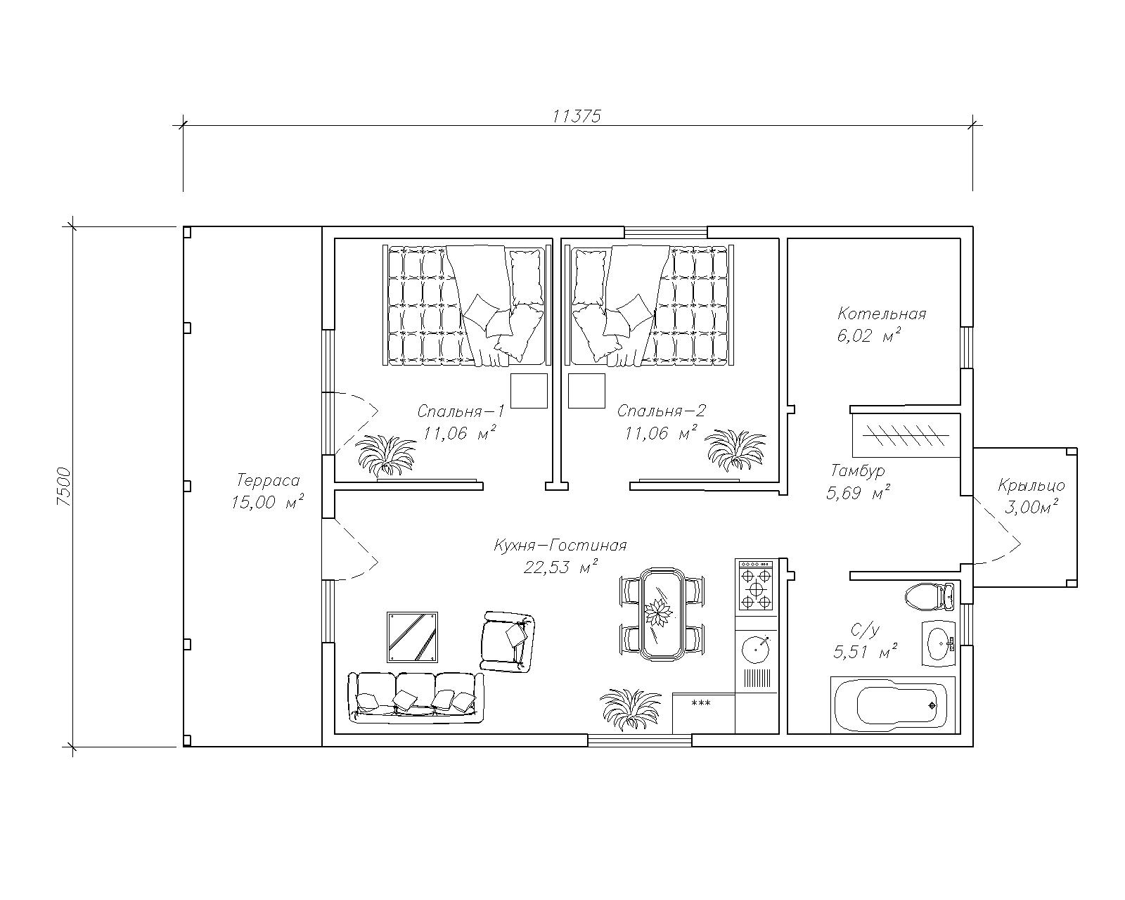
Планировка дома

Планировка дома 1 этаж
1 этаж

Крыльцо

3,0 м2

Терраса

15,0 м2

Тамбур

5,69 м2

Котельная

6,02 м2

Санузел

5,51 м2

Кухня-гостиная

22,53м2

Спальня1

11,06 м2

Спальня2

11,06 м2

Отзыв владельца дома

Карта построенных домов
Проекты Портфолио Кредит