«Дом Групп» — строительство загородных домов
г. Санкт-Петербург, проспект Маршала Жукова 28 к2
+7 (812) 942 92 92
Главная Портфолио
Дом по индивидуальному проекту Добручинская волость

Дом по индивидуальному проекту Добручинская волость

Дом по индивидуальному проекту Добручинская волость
Дом по индивидуальному проекту Добручинская волость
Дом по индивидуальному проекту Добручинская волость
Дом по индивидуальному проекту Добручинская волость

Дом по индивидуальному проекту Добручинская волость

Место строительства

Псковская область.  д. «Мельговщина»

Год строительства

2025г.

Общая площадь

80 м2

Количество этажей 

1

Размеры

11,375м*7,5м

Количество комнат

3

Количество санузлов

1

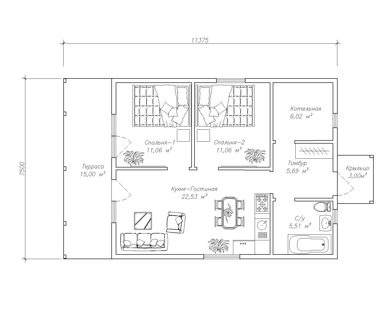
Планировка дома

Планировка дома 1 этаж
1 этаж

Крыльцо

3,00 м2

Терраса

15,00 м2

Тамбур

5,69 м2

Кухня-гостиная

22,53 м2

Санузел

5,51 м2

Спальня 1

11,06 м2

Спальня 2

11,06 м2

Котельная

6,02 м2

Отзыв владельца дома

Карта построенных домов
Проекты Портфолио Кредит