«Дом Групп» — строительство загородных домов
г. Санкт-Петербург, проспект Маршала Жукова 28 к2
+7 (812) 942 92 92
Главная Проекты домов Дома до 110 м2
Проект дома из СИП панелей «Бречин»
Проект дома из СИП панелей «Бречин»
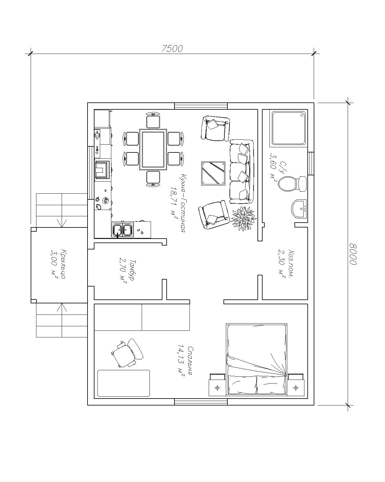
Общая площадь - 51 м2
Количество этажей - 1
Размеры - 8м2*7,5м2
Количество комнат - 2
Количество санузлов - 1
от 895 000 руб.
Варианты внешней отделки “Проект дома из СИП панелей «Бречин»”
small
Отделка под камень
small
Отделка под кирпич
small
Отделка блок-хаусом
small
Отделка светлым сайдингом
Планировка
Крыльцо 3 м2
Тамбур 2,7 м2
Кухня-гостиная 18,71 м2
Санузел 3,6 м2
Спальня 14,13 м2
Хоз. Помещение 2,3 м2
Хотите внести пожелания
в планировку?
Оставьте заявку и мы
свяжемся с вами
Комплектация дома “Проект дома из СИП панелей «Бречин»”
Домокомплект
895 000 руб.
Фундамент
Фундамент: Забивные железобетонные сваи сечением 150х150, длина 3м. Монтаж, выравнивание свай в один горизонтальный уровень, крепление оголовков.
Комплект готового дома
Комплект готового дома: Обвязочный брус сечением 150х200. Деревянные элементы стен, перекрытий, кровли - сухой, строганый, антисептированный пиломатериал. СИП панели цокольного перекрытия 174 мм с усиленным верхним слоем ОСП 15мм. СИП панели ограждающих стен 174 мм. Внутренние перегородки - СИП панели 118мм. СИП панели чердачного перекрытия 174 мм. Крепеж. Монтажная пена. Ветрозащита стен. Рабочая документация для сборки дома.
Сборка домокомплекта
Сборка домокомплекта: Разгрузка домокомплекта на строительной площадке. Складирование материалов с покрытием для защиты от осадков. Монтаж дома на готовом фундаменте.
Смонтированные кровля
Монтаж обрешетки, контробрешетки, ветровлагозащиты с установкой металлочерепицы Монтеррей 0,45мм. Монтаж 2-х вентпроходок.
Установленные окна и двери
Установленные окна и двери: Окна ПВХ белые. Двухкамерный стеклопакет. С поворотно-откидным механизмом. Дверь металлическая, утепленная.
Заказать
Домокомплект+ сборка
1 240 000 руб.
Фундамент
Фундамент: Забивные железобетонные сваи сечением 150х150, длина 3м. Монтаж, выравнивание свай в один горизонтальный уровень, крепление оголовков.
Комплект готового дома
Комплект готового дома: Обвязочный брус сечением 150х200. Деревянные элементы стен, перекрытий, кровли - сухой, строганый, антисептированный пиломатериал. СИП панели цокольного перекрытия 174 мм с усиленным верхним слоем ОСП 15мм. СИП панели ограждающих стен 174 мм. Внутренние перегородки - СИП панели 118мм. СИП панели чердачного перекрытия 174 мм. Крепеж. Монтажная пена. Ветрозащита стен. Рабочая документация для сборки дома.
Сборка домокомплекта
Сборка домокомплекта: Разгрузка домокомплекта на строительной площадке. Складирование материалов с покрытием для защиты от осадков. Монтаж дома на готовом фундаменте.
Смонтированные кровля
Монтаж обрешетки, контробрешетки, ветровлагозащиты с установкой металлочерепицы Монтеррей 0,45мм. Монтаж 2-х вентпроходок.
Установленные окна и двери
Установленные окна и двери: Окна ПВХ белые. Двухкамерный стеклопакет. С поворотно-откидным механизмом. Дверь металлическая, утепленная.
Заказать
Под отделку
1 670 000 руб.
Фундамент
Фундамент: Забивные железобетонные сваи сечением 150х150, длина 3м. Монтаж, выравнивание свай в один горизонтальный уровень, крепление оголовков.
Комплект готового дома
Комплект готового дома: Обвязочный брус сечением 150х200. Деревянные элементы стен, перекрытий, кровли - сухой, строганый, антисептированный пиломатериал. СИП панели цокольного перекрытия 174 мм с усиленным верхним слоем ОСП 15мм. СИП панели ограждающих стен 174 мм. Внутренние перегородки - СИП панели 118мм. СИП панели чердачного перекрытия 174 мм. Крепеж. Монтажная пена. Ветрозащита стен. Рабочая документация для сборки дома.
Сборка домокомплекта
Сборка домокомплекта: Разгрузка домокомплекта на строительной площадке. Складирование материалов с покрытием для защиты от осадков. Монтаж дома на готовом фундаменте.
Смонтированные кровля
Монтаж обрешетки, контробрешетки, ветровлагозащиты с установкой металлочерепицы Монтеррей 0,45мм. Монтаж 2-х вентпроходок.
Установленные окна и двери
Установленные окна и двери: Окна ПВХ белые. Двухкамерный стеклопакет. С поворотно-откидным механизмом. Дверь металлическая, утепленная.
Заказать
Похожие проекты
Проект дома из СИП панелей «Кобург»
Общая площадь 45
Размеры 7,5м*6,0м
Количество комнат 3
870 000 руб.
Подробнее
Проект дома из СИП панелей «Лиллоет»
Общая площадь 65
Размеры 9,0 м * 6,25 м
Количество комнат 3
1 120 000 руб.
Подробнее
Проект дома из СИП панелей «Касимер»
Общая площадь 104,1
Размеры 15,0 м * 9,0 м
Количество комнат 3
1 650 000 руб.
Подробнее
Все проекты
Самые популярные проекты
Проект дома из СИП панелей «Томстаун»
Общая площадь 131,2
Размеры 9,25 м*8,75 м
Количество комнат 5
2 010 000 руб.
Подробнее
Проект дома из СИП панелей «Бигвуд»
Общая площадь 162
Размеры 15,0 м*11,75 м
Количество комнат 4
2 135 000 руб.
Подробнее
Проект дома из СИП панелей «Ромфорд»
Общая площадь 221,3
Размеры 13,0 м* 10,7 м
Количество комнат 5
2 940 000 руб.
Подробнее
Все проекты
Остались вопросы?
Не нужно тратить свое время на изучение большого количества бесполезной информации, Узнайте все у специалиста!
Наш адрес:
г. Санкт-Петербург, проспект Маршала Жукова 28 к2 8 (812) 942 92 92 8 (921) 956 54 84 info@domgrupp.ru Перезвоните мне
Проекты Портфолио Кредит