«Дом Групп» — строительство загородных домов
г. Санкт-Петербург, проспект Маршала Жукова 28 к2
+7 (812) 942 92 92
Главная Портфолио
Дом по индивидуальному проекту Вындин Остров

Дом по индивидуальному проекту Вындин Остров

Дом по индивидуальному проекту Вындин Остров
Дом по индивидуальному проекту Вындин Остров
Дом по индивидуальному проекту Вындин Остров
Дом по индивидуальному проекту Вындин Остров
Дом по индивидуальному проекту Вындин Остров

 

Место строительства

ЛО. сп. «Вындиноостровское»

Год строительства 

2024г.

Общая площадь 

200 м2

Количество этажей  

2

Размеры 

13,0м*10,0м

Количество комнат 

8

Количество санузлов 

3

Планировка дома

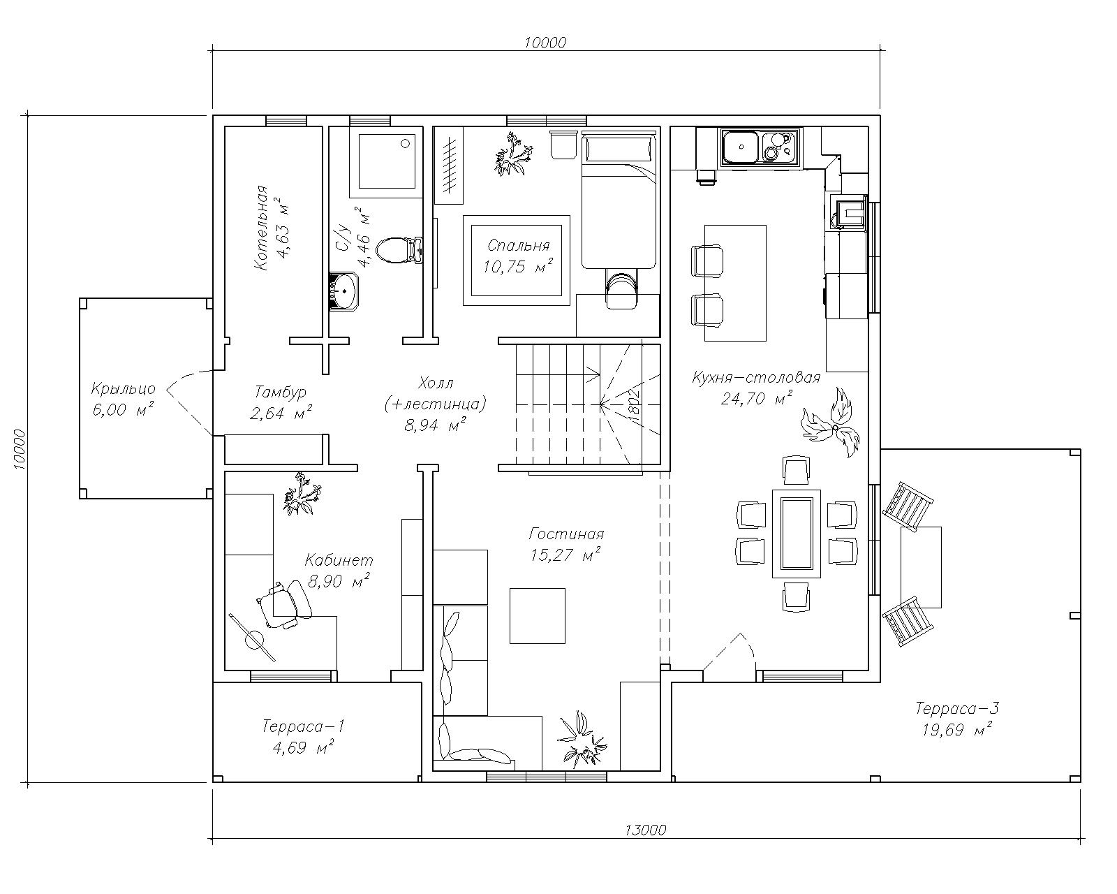
Планировка дома 1 этаж
1 этаж

Крыльцо

6,0 м2

Терраса1

4,69 м2

Терраса2

19,69 м2

Тамбур

2,64 м2

Котельная

4,63 м2

Кабинет

8,9м2

Санузел1

4,46 м2

Спальня 1

10,75м2

Гостиная

15,27 м2

Кухня-столовая

24,7 м2

Холл

8,94 м2

2 этаж

Холл

2,38 м2

Спальня 2

12,67м2

Спальня 3

11,28м2

Спальня 4

18,0м2

Санузел2

5,95 м2

Ванная

10,75 м2

Гостиная

15,28 м2

Балкон 1

4,69 м2

Балкон 2

4,69 м2

Отзыв владельца дома

Карта построенных домов
Проекты Портфолио Кредит