«Дом Групп» — строительство загородных домов
г. Санкт-Петербург, проспект Маршала Жукова 28 к2
+7 (812) 942 92 92
Главная Портфолио
Дом по индивидуальному проекту Усть-Ижора

Дом по индивидуальному проекту Усть-Ижора

Дом по индивидуальному проекту Усть-Ижора
Дом по индивидуальному проекту Усть-Ижора
Дом по индивидуальному проекту Усть-Ижора
Дом по индивидуальному проекту Усть-Ижора

 

Дом по индивидуальному проекту Усть-Ижора

Место строительства

ЛО. деревня «Усть-Ижора»

Год строительства 

2025г.

Общая площадь 

108 м2

Количество этажей  

1

Размеры 

12,0м*7, 5м

Количество комнат 

4

Количество санузлов 

2

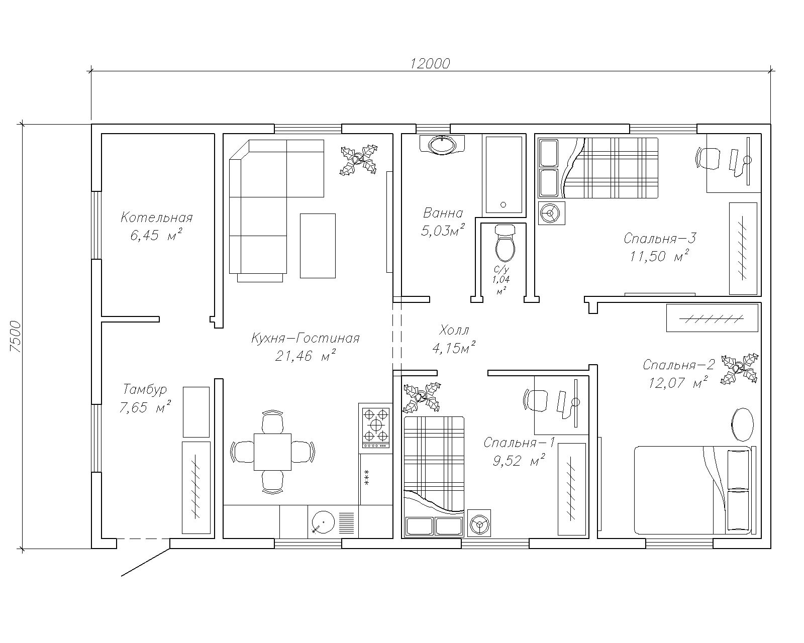
Планировка дома

Планировка дома 1 этаж
1 этаж

Тамбур

7,65 м2

Кухня-гостиная

21,46 м2

Санузел

1,04 м2

Ванная

5,03м2

Спальня 1

9,52 м2

Спальня 2

12,07 м2

Спальня 3

11,50 м2

Котельная

6,45 м2

Холл

4,15 м2

Отзыв владельца дома

Карта построенных домов
Проекты Портфолио Кредит