«Дом Групп» — строительство загородных домов
г. Санкт-Петербург, проспект Маршала Жукова 28 к2
+7 (812) 942 92 92
Главная Портфолио
Дом по индивидуальному проекту Удальцово

Дом по индивидуальному проекту Удальцово

Дом по индивидуальному проекту Удальцово
Дом по индивидуальному проекту Удальцово
Дом по индивидуальному проекту Удальцово
Дом по индивидуальному проекту Удальцово

 

Дом по индивидуальному проекту Удальцово

Место строительства

ЛО. д. «Удальцово»

Год строительства 

2024г.

Общая площадь 

101 м2

Количество этажей  

1

Размеры 

12,5м*10,5м

Количество комнат 

4

Количество санузлов 

2

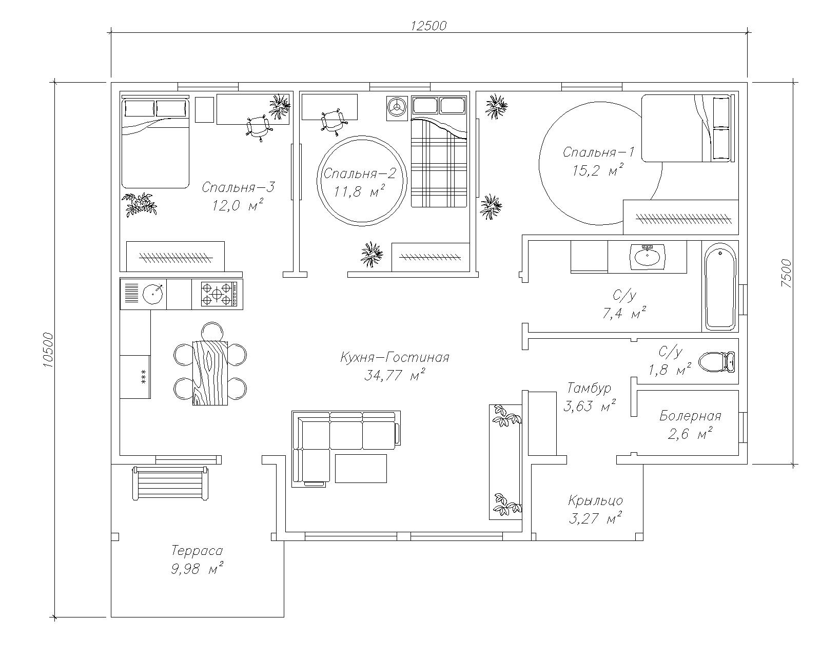
Планировка дома

Планировка дома 1 этаж
1 этаж

Крыльцо

3,27м2

Терраса

9,98м2

Тамбур

3,63 м2

Кухня-гостиная

34,77 м2

Санузел 1

1,8 м2

Санузел 2

7,4 м2

Спальня 1

15,2 м2

Спальня 2

11,8 м2

Спальня 3

12,0 м2

Бойлерная

2,6 м2

Отзыв владельца дома

Карта построенных домов
Проекты Портфолио Кредит