«Дом Групп» — строительство загородных домов
г. Санкт-Петербург, проспект Маршала Жукова 28 к2
+7 (812) 942 92 92
Главная Портфолио
Дом по индивидуальному проекту Северная Самарка

Дом по индивидуальному проекту Северная Самарка

Дом по индивидуальному проекту Северная Самарка
Дом по индивидуальному проекту Северная Самарка
Дом по индивидуальному проекту Северная Самарка

Дом по индивидуальному проекту Северная Самарка

Место строительства

ЛО.  поселок «Северная Самарка»

Год строительства

2025г.

Общая площадь

155 м2

Количество этажей 

2

Размеры

11,60м*9,125м

Количество комнат

5

Количество санузлов

2

Планировка дома

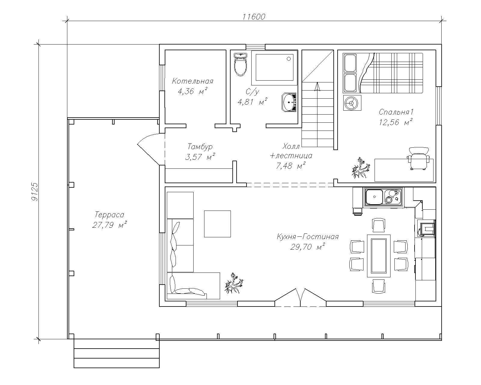
Планировка дома 1 этаж
1 этаж

Терраса

27,79 м2

Тамбур

3,57 м2

Санузел1

4,81 м2

Кухня-Гостиная

29,70 м2

Спальня1

12,56м2

Холл

7,48 м2

Котельная

4,36 м2

2 этаж

Холл

5,64 м2

Спальня 2

12,56 м2

Спальня 3

14,63 м2

Спальня 4

14,63 м2

Гардероб

3,04 м2

Санузел2

6,93 м2

Отзыв владельца дома

Карта построенных домов
Проекты Портфолио Кредит