«Дом Групп» — строительство загородных домов
г. Санкт-Петербург, проспект Маршала Жукова 28 к2
+7 (812) 942 92 92
Главная Портфолио
Дом по индивидуальному проекту Огоньки

Дом по индивидуальному проекту Огоньки

Дом по индивидуальному проекту Огоньки
Дом по индивидуальному проекту Огоньки
Дом по индивидуальному проекту Огоньки
Дом по индивидуальному проекту Огоньки

Дом по индивидуальному проекту Огоньки

Место строительства

ЛО.  д. «Огоньки»

Год строительства

2024г.

Общая площадь

101 м2

Количество этажей 

1

Размеры

14,375м*9,0м

Количество комнат

4

Количество санузлов

2

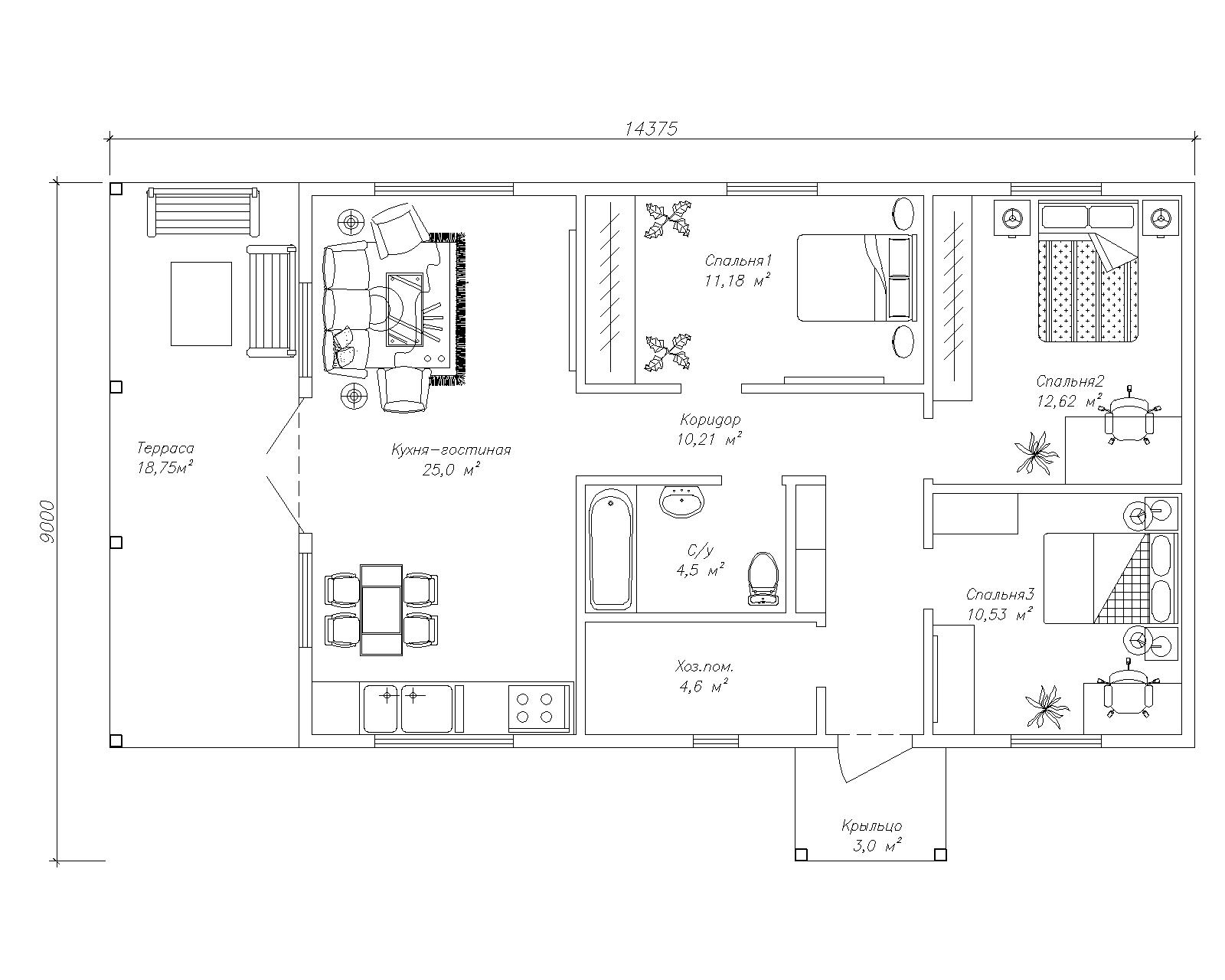
Планировка дома

Планировка дома 1 этаж
1 этаж

Крыльцо

3,27 м2

Терраса

18,75 м2

Коридор

10,21 м2

Кухня-гостиная

25,00 м2

Санузел

4,50 м2

Спальня 1

11,18 м2

Спальня 2

12,62 м2

Спальня 3

10,53 м2

Котельная

4,60 м2

Отзыв владельца дома

Карта построенных домов
Проекты Портфолио Кредит