«Дом Групп» — строительство загородных домов
г. Санкт-Петербург, проспект Маршала Жукова 28 к2
+7 (812) 942 92 92
Главная Портфолио
Дом по индивидуальному проекту Лаголово

Дом по индивидуальному проекту Лаголово

Дом по индивидуальному проекту Лаголово
Дом по индивидуальному проекту Лаголово
Дом по индивидуальному проекту Лаголово

 

Дом по индивидуальному проекту Лаголово

Место строительства

ЛО. деревня «Лаголово»

Год строительства 

2025г.

Общая площадь 

108 м2

Количество этажей  

1

Размеры 

13,75м*8,75м

Количество комнат 

4

Количество санузлов 

1

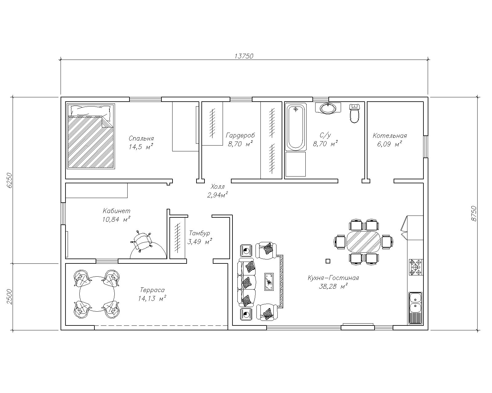
Планировка дома

Планировка дома 1 этаж
1 этаж

Терраса

14,13м2

Тамбур

3,49 м2

Кухня-гостиная

38,28 м2

Санузел

8,70 м2

Спальня 1

14,50 м2

Кабинет

10,84 м2

Гардероб

8,70 м2

Котельная

6,09 м2

Холл

2,94 м2

Отзыв владельца дома

Карта построенных домов
Проекты Портфолио Кредит