«Дом Групп» — строительство загородных домов
г. Санкт-Петербург, проспект Маршала Жукова 28 к2
+7 (812) 942 92 92
Главная Портфолио
Дом по индивидуальному проекту Березка

Дом по индивидуальному проекту Березка

Дом по индивидуальному проекту Березка
Дом по индивидуальному проекту Березка
Дом по индивидуальному проекту Березка

Дом по индивидуальному проекту Березка

Место строительства

ЛО.  СНТ «Березка»

Год строительства

2024г.

Общая площадь

101 м2

Количество этажей 

1

Размеры

12,0м*10,0м

Количество комнат

4

Количество санузлов

1

 

 

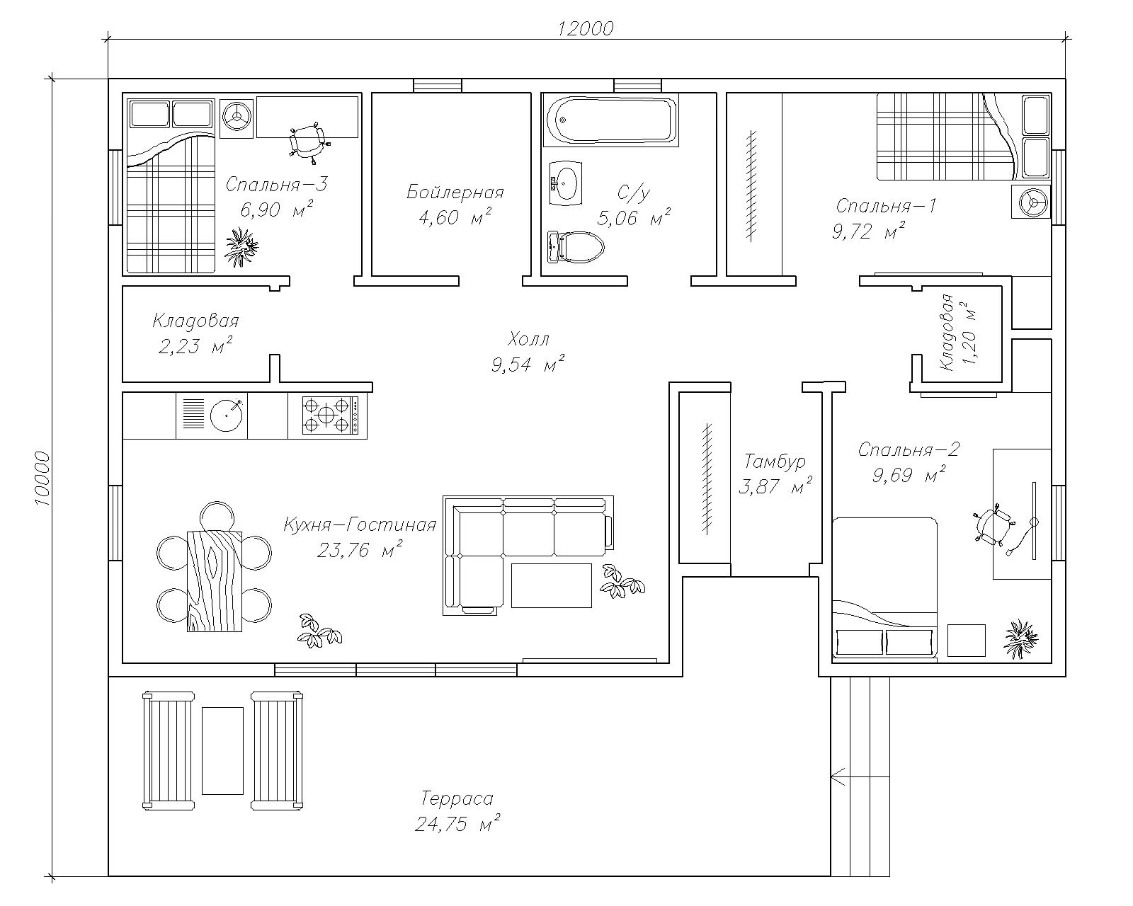
Планировка дома

Планировка дома 1 этаж
1 этаж

Терраса

24,75м2

Тамбур

3,87 м2

Кухня-гостиная

23,76 м2

Санузел

5,06 м2

Спальня 1

9,72 м2

Спальня 2

9,69 м2

Спальня 3

6,90 м2

Бойлерная

4,60 м2

Кладовая 1

2,23 м2

Кладовая 2

1,20 м2

Холл

9,54 м2

Отзыв владельца дома

Карта построенных домов
Проекты Портфолио Кредит