«Дом Групп» — строительство загородных домов
г. Санкт-Петербург, проспект Маршала Жукова 28 к2
+7 (812) 942 92 92
Главная Портфолио
Дом по индивидуальному проекту Аннино

Дом по индивидуальному проекту Аннино

Дом по индивидуальному проекту Аннино
Дом по индивидуальному проекту Аннино
Дом по индивидуальному проекту Аннино
Дом по индивидуальному проекту Аннино

Дом по индивидуальному проекту Аннино

Место строительства

ЛО.  поселок «Аннино»

Год строительства

2025г.

Общая площадь

194 м2

Количество этажей 

2

Размеры

13,75м*10,28м

Количество комнат

7

Количество санузлов

2

Планировка дома

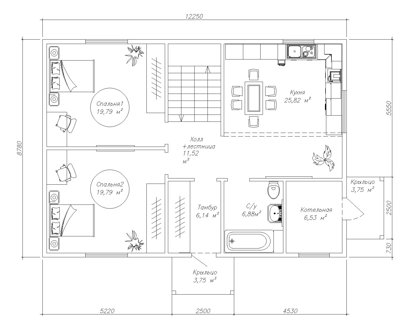
Планировка дома 1 этаж
1 этаж

Крыльцо1

3,75 м2

Крыльцо2

3,75 м2

Тамбур

6,14 м2

Санузел1

6,88 м2

Кухня-столовая

25,85 м2

Спальня1

19,79м2

Спальня2

19,79м2

Холл

11,52 м2

Котельная

6,53 м2

2 этаж

Холл

4,85 м2

Спальня 3

19,68м2

Спальня 4

19,68м2

Спальня 5

19,68м2

Спальня 6

19,68м2

Санузел2

6,19 м2

Отзыв владельца дома

Карта построенных домов
Проекты Портфолио Кредит